Also wollte mal eine Anleitung erstellen für diejenigen die sich eine wünschen so wie ich es mir bevor ich meine eingebaut habe, gewünscht habe. (Schonmal voraus, nichts für kleine Leute!)
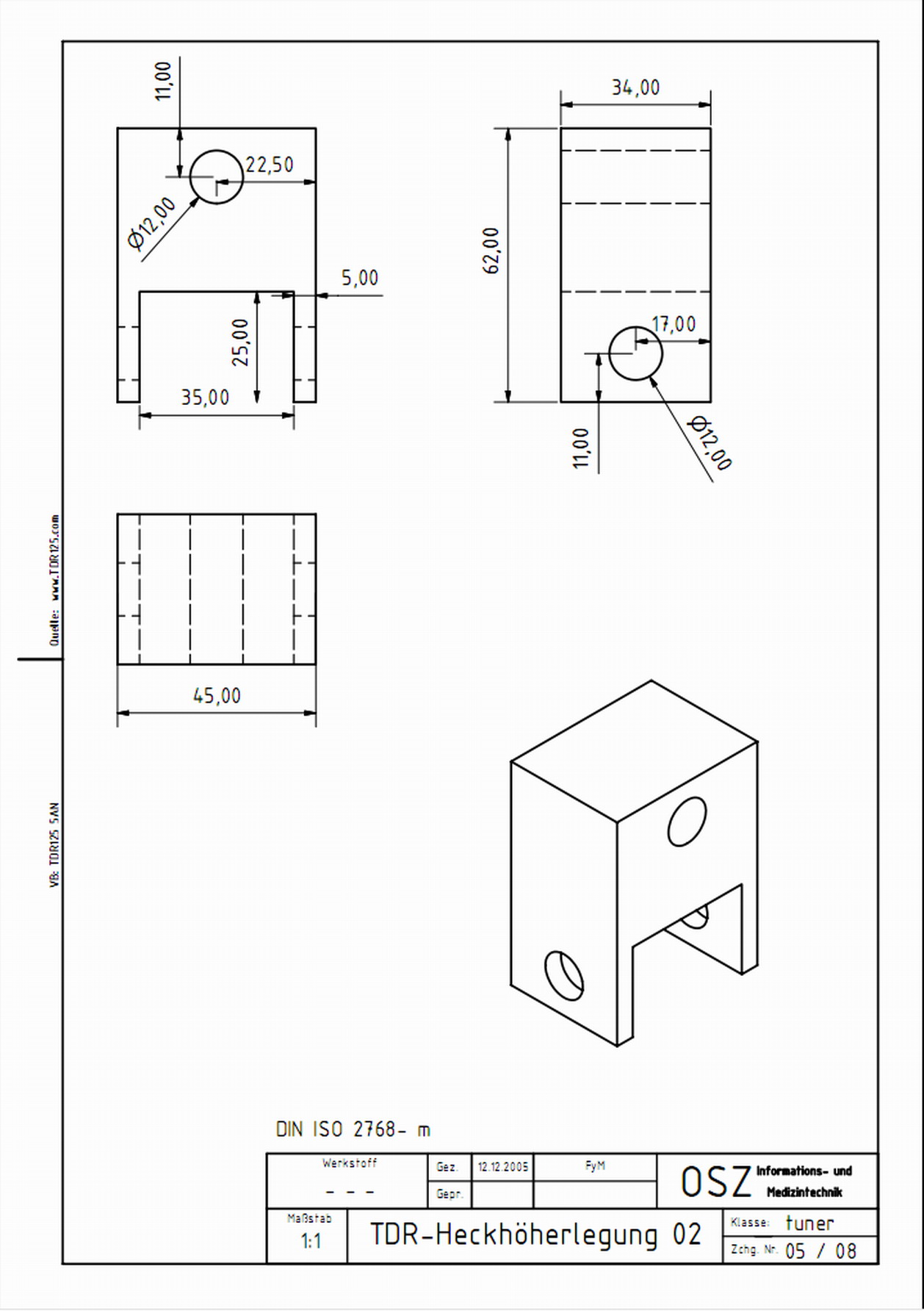
1. Man lässt dich diese http://tdr125.rhymez.net/download/file. ... iew&id=227 freundlicherweise von Free zur Verfügung gestellte Zeichnung bei einem Schloßer anfertigen. (aus einem Stück gefräßt oder geschweißt) Bei mir war es aus einem Stück Stahl Gefräst. Dazu benötigt man noch eine 70mm lange Gewindestange mit einem Durchmesser von 12mm und 2 Muttern. Mein Schloßer wollte insg. für alles 20 euronen.
2. Bocke die TDR mit Hilfe einer Getränkekiste hoch, sodass die Hinterradschwinge frei schwebt.
3. Nehme die Sitzbank ab.
4. Löse den Bolzen der das Federbein im Rahmen hält. (ein Kollege sollte die Hinterradschwinge etwas nach oben drücken und dann nachdem der Bolzen gelöst worden ist, sachte runter lassen.)
5. (OPTIONAL aber sehr hilfreich) Nun löst man die 4 Muttern die links und rechts neben der Batterie und hinten links und rechts neben dem Rücklicht den "Radkasten" heben, sodass man den gesamten "Radkasten" an der Batterie vorne hoch ziehen kann und das Federbein nach hinten in Richtung Kennzeichen Kippen kann.
6. Jetzt das obere Ende des Federbeins um 90° drehen. (am besten Bolzen durch schieben und als Griff benutzen)
7. Jetzt das vom Schloßer angefertigte Teil auf das Federbein stecken, die Gewindestange durch und die Muttern links und rechts an der Gewindestange fest schrauben.
8. Diejenigen die Punkt 5 durchgeführt haben, ziehen jetzt wieder vorne an der Batterie und lassen das Federbein wieder nach vorne kippen.
9. Als nächstes den Originalen Bolzen nun durch das angefertigte Teil vom Schloßer und Rahmen stecken und fest schrauben.
10. Fertig!
11. (OPTIONAL) die Vorspannung vom Federbein mit dem im Bordwerkzeug enthaltenem Hakenschlüssel auf die niederste Stufe stellen.
12. (OPTIONAL) Kette neu spannen (nicht zu fest!)
13. (OPTIONAL aber sehr empfehlenswert) Da die TDR nun sehr schief steht habe ich meinen Ständer wieder beim Schloßer um 4,5cm zwischen Fuß und der Halterung für die Feder verlängern lassen. So steht sie wieder normal.
Hoffe ich konnte helfen und es ist alles verständlich.
Liebe Grüße
Gotti
Heckhöherlegung einbauen
Moderatoren: freeyourminds, schubsi
Heckhöherlegung einbauen
- Dateianhänge
-
- Heckhöherlegung TDR 125.jpg (200.25 KiB) 9815 mal betrachtet
Re: Heckhöherlegung einbauen
Und so könnte das dann aussehen 
Das Teil auf dem Federbein:
http://s7.directupload.net/images/100729/799s5cus.jpg
Schlusslicht
*strahl* :
http://s3.directupload.net/images/100729/9ctvptng.jpg
(man achte auf das Heck
)
Gotti
Das Teil auf dem Federbein:
http://s7.directupload.net/images/100729/799s5cus.jpg
Schlusslicht
http://s3.directupload.net/images/100729/9ctvptng.jpg
(man achte auf das Heck
Gotti
- freeyourminds
- Administrator

- Beiträge: 2475
- Registriert: 11. Mai 2005, 12:02
- Wohnort: Berlin
- Kontaktdaten:
Re: Heckhöherlegung einbauen
ich mach mal noch eine cad-zeichnung von der, die ich drin hatte. muss das nur anpassen meine war nicht sehr dick weil die aus Edelstahl gefräst war.
Re: Heckhöherlegung einbauen
aber ich muss schon sagen das passt auch super mit der wie man auf dem bild sehen kann.
Gotti
Gotti
